Chi phí thiết kế : 2.000.000VND
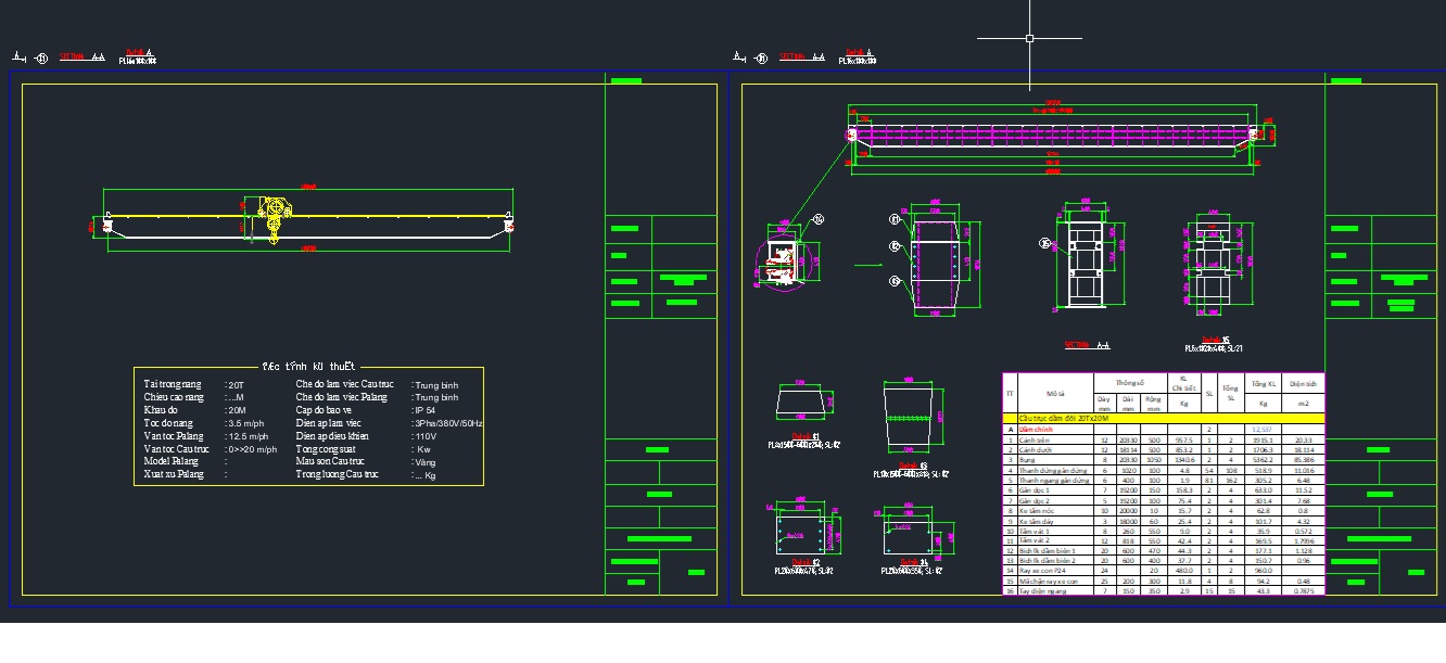
Gồm: Bản vẽ chi tiết kỹ thuật cầu trục : Dầm chính, Dầm biên, Bảng kê tôn để pha cắt tôn
Gửi bình luận